IMG_1143  Edit.jpg
Existing Plan

Existing Plan

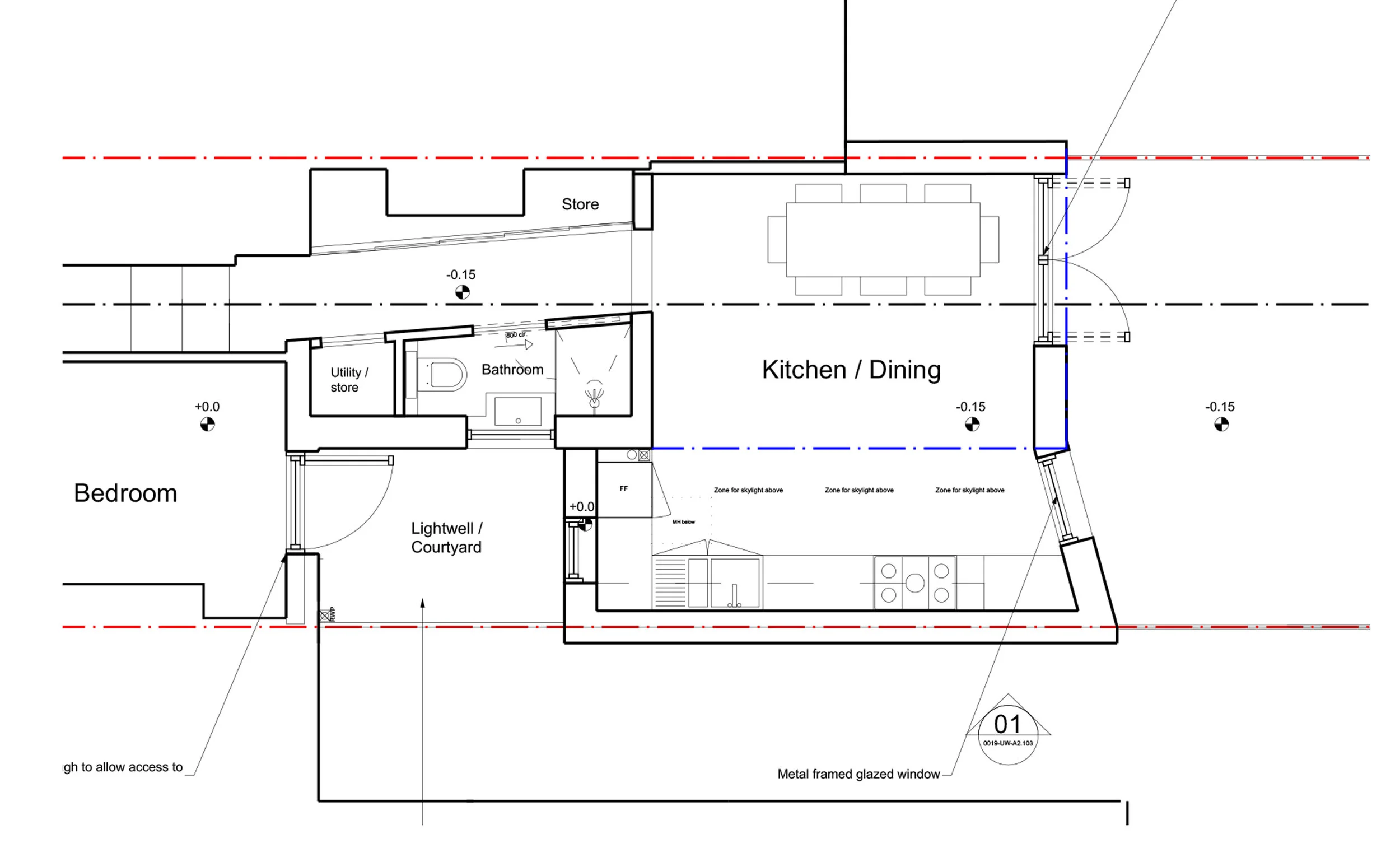
Proposed Plan

Proposed Plan

Proposed Elevation & Section

Proposed Elevation & Section

Side return extension - Leyton

Brief: Rear and side return extensions to a ground floor property

Budget: Undisclosed

Scope: Building Regulations & Construction Information

We inheritted this project after a previous architects had successfully gained planning permission. Intially a design which had no internal courtyard was submitted for planning but Waltham Forest have an issue with full side returns and insisted on a courtyard. As a practice we strongly feel a courtyard benefits a side return design: it helps bring more light into the centre of the home, provides an additional space and is also much more considerate of the neighbouring property.

Initially we reviewed the design and suggested improvements which included:

  • Switching the kitchen to the other party wall

  • Introducing a site line from the bedroom to the garden

  • Creating a bench seat area in place of the kink in the facade

  • Introducing a double pitch the roof which added volume internally and added architectural interest. Pitched roofs are also less maintinance.

The clients were happy to accept all of our suggested design improvements and we will be submitting a non material ammendment to capture the changes.

The build is now completed which is a milestone for Above Studio as this was the first side return that we designed. We think the end result is fantastic.

The revision to the roof design which removed the parapet is a slight shame as it reduces the number of sailor bond bricks on show but the change doesn’t detract from the overall aesthetic of the elevation.

Photograph Showing Stepped Facade

Photograph Showing Stepped Facade

Existing Elevation

Existing Elevation